• Portfolio
  • About
  • Testimonials
  • Media
  • Awards
  • Contact
Kitty Lee Architecture
  • Portfolio
  • About
  • Testimonials
  • Media
  • Awards
  • Contact

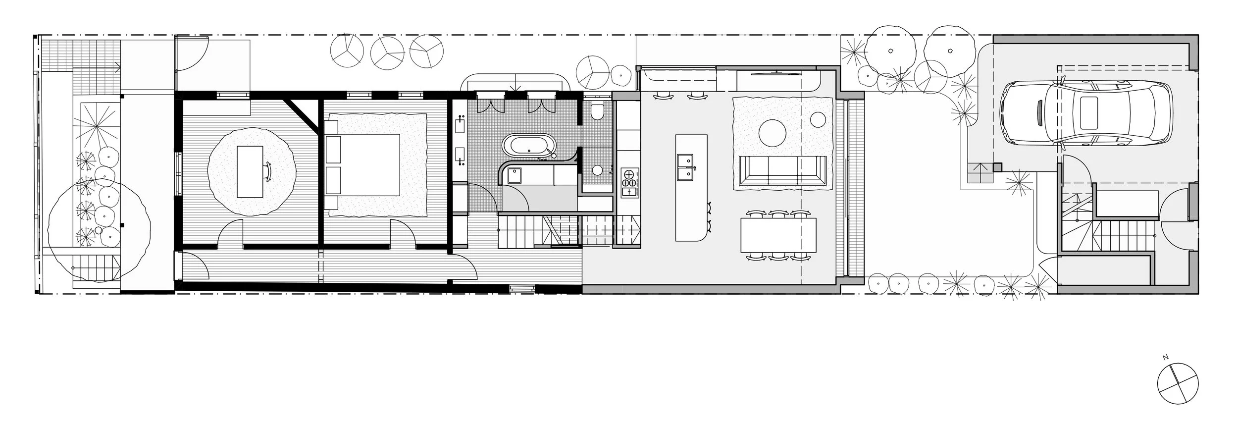
Alamo House

Annandale, 196sqm

Inspired by the enduring nature of the existing Federation cottage, this project aimed to create a home on a modest urban block to support the evolving needs of a growing young family.

The tired but charming heritage cottage was lovingly restored and extended to become a refined, yet relaxed four-bedroom home with a separate studio to the rear lane. At the heart of the house, the preservation of a pair of original French doors was the starting point for the new design. The room was altered from a living room to become a generous family bathroom, with a new functional laundry hidden behind the curved wall.

Upstairs, the main bedroom is set back from the rear façade, offering privacy from the neighbouring houses. This approach allowed increased height to the ground-floor addition, a gesture that draws natural light deep into the house. The brick portal at the rear of the house manifests both indoors and outdoors, a threshold that expands the living area and integrates it with the garden beyond.

Longlisted: Top 12 Bathroom Interiors - Dezeen Awards 2025 (Global)

Builder: Geometric Construction | Photographer: Nat Spada Photography | Stylist: Tilly Roberts Design

Annandale WR-10.jpg
Annandale WR-13.jpg
Annandale WR-9.jpg
Annandale WR-38.jpg
Annandale WR-27.jpg
Annandale WR-23.jpg
Annandale WR-31.jpg
Annandale WR-19.jpg
Annandale WR-22.jpg
Annandale WR-18.jpg
Annandale WR-1.jpg
Annandale WR-2.jpg
Annandale WR-5.jpg
After ground plan.jpg
After first plan.jpg